Lambda Oasis Campus, Phase 1

Shanghai, China

A Digital Oasis Incubates Shanghai’s Tech Startups

Blending industrial heritage with digital innovation, this office campus fosters startup growth through flexible design, biophilic workspaces, and tenant collaboration.
HIGHLIGHTS
  • 8 Independent Office Units
  • 4 Unique Office Typologies
  • Two-Layer High-Tech Façade with Animations That Illuminate at Night
  • Each Office Unit Has an Independent Roof Terrace
  • Integrated Drop-Off Zone
  • Open Greenery and Central Park
A large building with glass windows.
Challenge

Shanghai’s office campus market faces intense competition for tech talent and emerging startups. Developers must create environments that attract diverse tenants — from early-stage companies to established firms — while maintaining a cohesive campus identity. In Shanghai’s evolving Baoshan District, the client challenged Gensler to transform a former industrial zone into a vibrant tech hub that signals innovation and ambition. The campus needed to attract future employees while fostering the interactions that drive startup culture.

Solution

Gensler partnered with the Lingang Group to develop a synergy cluster strategy supporting startup growth through diverse office typologies. The campus integrates tenants into a three-incubator hub. Meeting spaces, cafés, and leisure areas foster interaction and spur creativity within the hub’s central plaza. The design increases exposure to nature with a series of parks, green spaces and private terraces for each office. A unique façade with 7,500 meters of metal rods illuminates at night, blending the site’s industrial heritage with its digital tech character.

Impact

Lambda Oasis Campus sets a new standard in office campus design by creating synergies between tenants while providing a distinct campus identity. The project is a pioneer within its district, sparking a new wave of startup culture. Biophilic elements and a campus designed for walkability enhance workers’ productivity and well-being. The project has attracted top tenants with creative and innovative talent, establishing a blueprint for the region’s transformation and guiding the next generation of the tech industry forward.

Diagram, engineering drawing.
Diagram, engineering drawing.
Cluster Massing Design
A tall glass building.
A river with buildings along it.
Using its creative design, the Lambda Oasis Campus is uniting three plots to boost digital infrastructure and create a role model for urban and digital transformation.
—Qian Min, Chairman, Lingang Nanda Company
A road leading to a city.
A large building with many windows.
A courtyard between large buildings.
Icon.
Cluster Arrival Strategy
Diagram, engineering drawing.
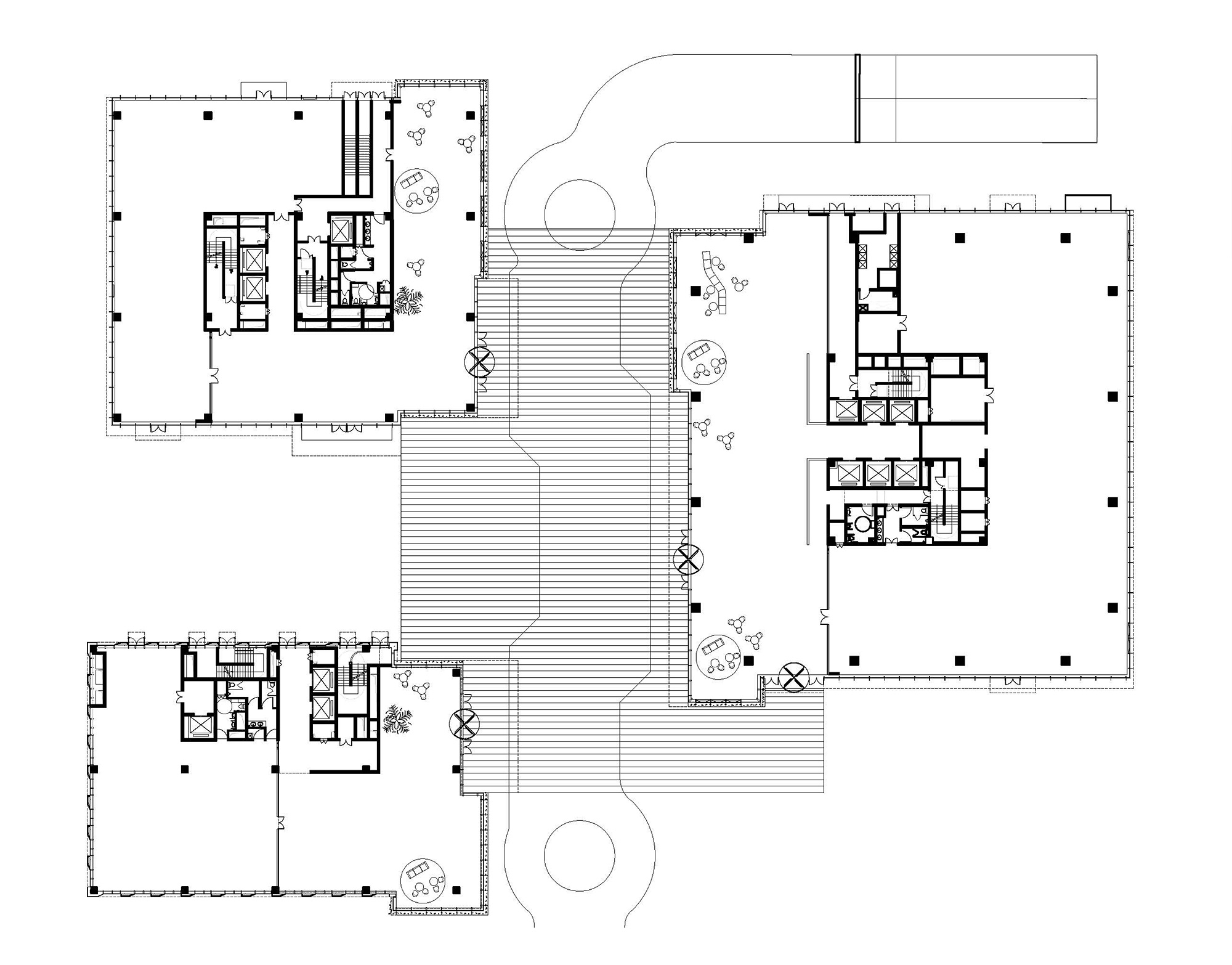
Cluster Plan Layout / 1F
A person walking outside of a building.
A person walking outside of a building.
Resilience Project Metrics
  • 3 Facade Families
  • 3 Types of Metal Rods Radius
  • Integrated Natural Ventilation
  • Gold Office Facade 2025 by DAF China
  • 7500 Meters of Metal Rods
  • 4 Systems of Facade Lighting
A person building a cube.
A building with a grass lawn.
A building with glass walls.
Chart.
Vertical Rods Plan Detail
Diagram, engineering drawing.
Vertical Rods Section Detail
A road with buildings along it.
© Video by Ludwik Kaizerbrecht, Images by RAWVISION studio
A building with many windows.
Areas of Expertise
Recognition
Related Work
Further Reading
Interested in working with us?